In Bernhardswald nahe Regensburg entstehen drei Mehrfamilienhäuser mit je sechs Wohneinheiten in unterschiedlichen Größen.
Haus A entsteht im KFW 40 Standard, Haus B und C im KFW 55 -Standard (Niedrigpreissegment).*
BERNHARDSWALD/ REGENSBURG
Ankommen und Wohlfühlen: 18 Wohnungen, verteilt auf drei Mehrfamilienhäuser mit großzügige Grundrissen, Balkon, Terrasse oder Garten.
Ruhige Lage in Bernhardswald, nahe Regensburg.

Nach Regensburg

Kirche St. Bernhard

Kindergarten, Kindergrippe

Bushaltestelle

Kinderspielplatz

Grundschule
Bernhardswald liegt nur wenige Kilometer nordöstlich von Regensburg und verbindet naturnahes Wohnen mit der Nähe zur Stadt. Umgeben von Wäldern, Wiesen und sanften Hügeln bietet der Ort eine ruhige und familienfreundliche Umgebung mit hoher Lebensqualität. Gleichzeitig ist die Regensburger Innenstadt mit dem Auto oder dem öffentlichen Nahverkehr in kurzer Zeit erreichbar, sodass sich Arbeiten, Einkaufen und Freizeitangebote der Stadt bequem nutzen lassen.
Im Ort selbst finden sich wichtige Einrichtungen des täglichen Bedarfs, darunter Einkaufsmöglichkeiten, Kindergarten, Schule, Ärzte sowie ein aktives Vereinsleben. Spazier und Radwege in der Umgebung laden dazu ein, Zeit in der Natur zu verbringen und den Alltag entspannt ausklingen zu lassen.
Die Kreuther Höfe entstehen in dieser attraktiven Lage und bieten modernes Wohnen in überschaubarer Nachbarschaft. Drei Mehrfamilienhäuser mit jeweils sechs Wohnungen schaffen ein angenehmes Wohnumfeld, das Ruhe, Gemeinschaft und eine gute Anbindung an die Stadt miteinander verbindet. Bernhardswald ist damit ein idealer Ort für alle, die naturnah wohnen und dennoch schnell in Regensburg sein möchten.
In Bernhardswald nahe Regensburg entstehen drei Mehrfamilienhäuser mit je sechs Wohneinheiten in unterschiedlichen Größen.
Haus A entsteht im KFW 40 Standard, Haus B und C im KFW 55 -Standard (Niedrigpreissegment).*
*Nutzen Sie den Vorteil einen Kredit über die KfW-Bank in Höhe von 100.00,- Euro/ Wohneinheit mit einem Zinssatz von aktuell 0,01 % in Anspruch zu nehmen.
Mehr Informationen unter: Klimafreundlicher Neubau im Niedrigpreissegment (296) | KfW

Eigentumswohnungen in 3 Mehrfamilienhäusern

Wohnfläche

Fahrradstellplätze

Garagen- & Carportstellplätze

Grünfläche

Vorrüstung für E-Mobilität

Energieeffiziente Planung nach KFW 40 Standard bzw. KFW 55 Niedrigpreissegement
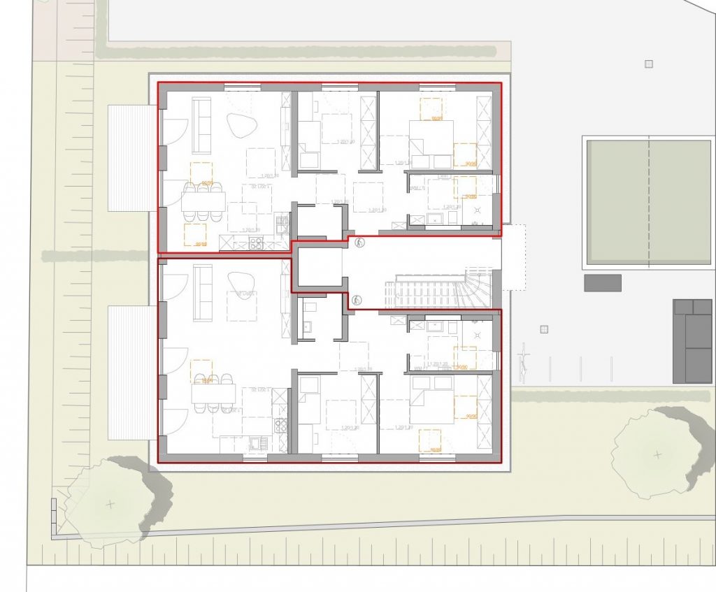
Wohnung 03 (links): 3-Zimmer-Wohnung mit 81.59 m² und Balkon
Wohnung 04 (rechts): 3-Zimmer-Wohnung mit 90.75 m² und Balkon

Eigentumswohnungen

Energieeffiziente Planung nach KFW 40 Standard

Eigentumswohnungen

KFW 55 Niedrigpreissegment
*Nutzen Sie den Vorteil einen Kredit über die KfW-Bank in Höhe von 100.00,- Euro/ Wohneinheit mit einem Zinssatz von aktuell 0,01 % in Anspruch zu nehmen.
Mehr Informationen unter: Klimafreundlicher Neubau im Niedrigpreissegment (296) | KfW

Eigentumswohnungen

KFW 55 Niedrigpreissegment

Haus C ist auch als Gesamtobjekt erwerbbar
*Nutzen Sie den Vorteil einen Kredit über die KfW-Bank in Höhe von 100.00,- Euro/ Wohneinheit mit einem Zinssatz von aktuell 0,01 % in Anspruch zu nehmen (Gesamtobjekt: 600.000,- Euro)
Mehr Informationen unter: Klimafreundlicher Neubau im Niedrigpreissegment (296) | KfW
Kontakt: Frau Beate Knorr
Telefon: +49 9431 722-132
E-Mail: beate.knorr@donhauser.de